
CAD and AI factory software specialist CADian officially launched “CADian 2026” on December 8, 2025, significantly enhancing design automation and user convenience features.
Since releasing Korea’s first CAD software in 1999, CADian has established itself as a leading Korean CAD brand by supporting the same commands and shortcuts as AutoCAD and offering full bi-directional DWG file compatibility.Over 100 Productivity Enhancements Including Smart Dimension
The most notable feature of CADian 2026 is its extensive automation capability, significantly improving design efficiency. Key enhancements include:
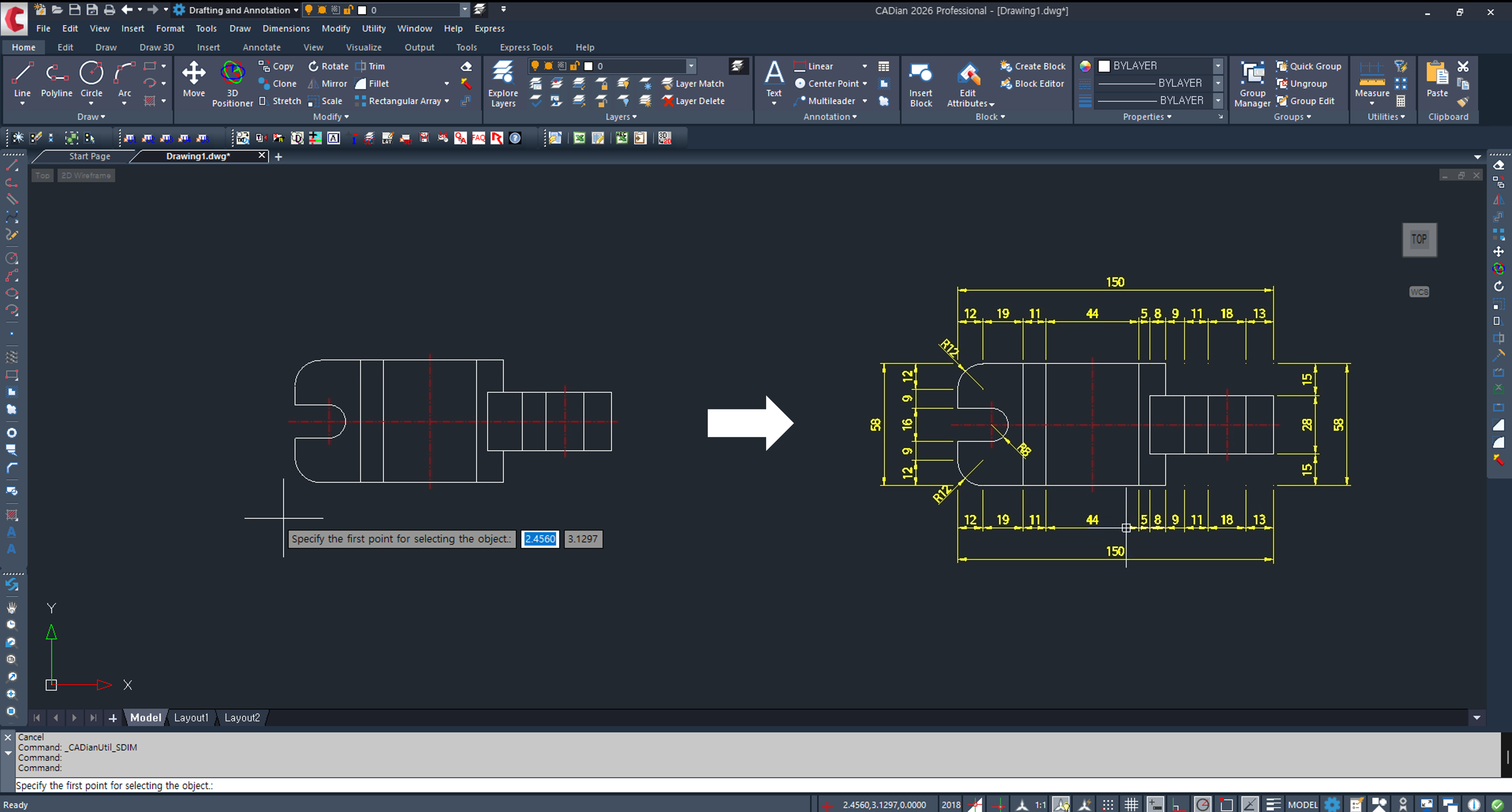
- Smart Dimension – Automatically generates dimensions for entire drawings or selected areas with a single action
- Automatic centerline generation
- Smart Detail Generator
- Smart Tools – A unified toolset including smart tolerance, offset, mirror, trim, and stretch
- Over 400 ready-to-use LISP utility tools for real-world workflows
- Autodesk Revit 2025 file support
- Enhanced SVG and DGN import processing
- Esri image support for GIS users
- User-friendly UI improvements
- Floating File Tab for parallel comparison and editing
- Adjustable command window transparency
- QR code insertion and recognition within drawings
- Enhanced copy & paste quality of OLE objects
- AI-powered PDF text recognition (runs directly on the user’s PC, not on servers)
- AI-based support system
- Newly redesigned intuitive interface
In particular, Smart Dimension offers ten automated dimensioning options, including full and partial dimensioning, automatic dimensions for circles, arcs, and shafts, dual dimensions, baseline dimensions, coordinate dimensions, and automatic tolerance insertion. This dramatically reduces repetitive work and significantly boosts drafting efficiency.
Perpetual Licensing to Reduce Cost Burden
CADian offers both subscription-based and perpetual licenses, helping organizations reduce long-term software costs. Both single-user (standalone) and multi-user (network) licenses are supported, allowing flexible selection based on organizational size and operational needs.
Paul Park, CEO of CADian, stated:
“Because CADian is developed completely independently from AutoCAD source code, users can operate it with full confidence, free from any copyright concerns. It also offers superior security in terms of preventing drawing data leakage. For engineers struggling with compatibility issues caused by illegal or outdated CAD software, CADian is being recognized as the most cost-effective alternative.”
Expansion into AI-Powered Design Solutions
CADian is also accelerating the development of AI-based design solutions.
- AI-CE – An AI-based cost estimation solution that automatically detects objects in drawing images and DWG files, regenerates drawings, and calculates BOM automatically
- TWArch – An AI-powered virtual restoration solution for traditional wooden architecture
Through these technologies, CADian is presenting a new paradigm in the design industry.
Paul added:
“As a leading expert in CAD technology, CADian will continue driving digital transformation across PC, mobile, and web-based CAD platforms, as well as the broader digital twin industry, through continuous innovation and product advancement.”
Trial Download The CADian 2026 trial version is available for free download at www.CADian.com. Detailed feature introductions can be viewed on the official CADian YouTube channel.
